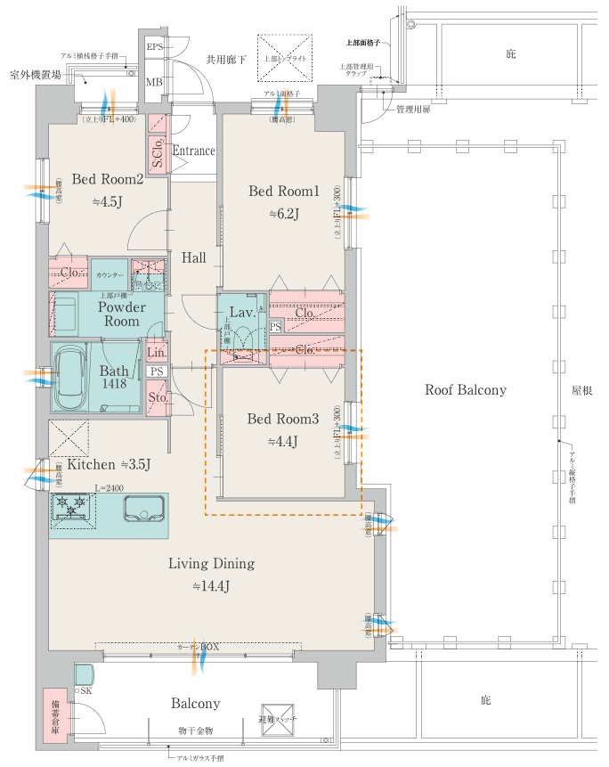
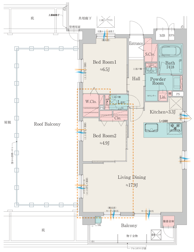
PLAN

プラン

《 モントーレ室見 リバーサイド 》

先着順販売中

完全予約となりますので、事前にエントリーをお願いします。

お問い合わせ

0120-347-555

  • モントーレ室見リバーサイド
  • 営業時間:10:00~18:30
  • 水・木曜日定休(祝日を除く)
  • マンションギャラリー:福岡県福岡市西区愛宕2丁目11-3 付近(碇整形外科跡地横)
  • ※ZEH-M Oriented(ゼッチ・マンション・オリエンテッド)は、断熱性能などを向上させるとともに、高効率な設備システムの導入により、室内環境の質を維持しつつ省エネルギー化を実現したうえで、年間エネルギー消費量を20%以上削減することを目指したマンションです。
  • 「モントーレ室見リバーサイド」は、このZEH-M Oriented(ゼッチ・マンション・オリエンテッド)の認証を取得。
  • ※掲載の航空写真および周辺写真は2025年9月に撮影したものです。
  • 航空写真は撮影したものにCG加工をしており、実際とは異なります。
  • 光柱は現地の位置を表現したもので実際の建物の規模や高さを示すものではありません。
  • 外観完成予想CGパースを合成処理(航空写真)したものについてはイメージで、物件位置や大きさなどは実際とは異なる場合があります。
  • ※掲載の完成予想CGは計画段階の図面を基に描き起こしたもので、形状・色等は実際とは見え方が異なることがあります。
  • なお、外観形状の細部、設備機器等は表現しておりません。
  • 行政の指導、施工上の都合および改良の為、変更する場合があります。
  • また、採用素材は施工上の都合により変更となる場合があります。
  • ※敷地の植栽は特定の時期やご入居時の状態を想定したものではありません。予めご了承下さい。
  • ※敷地配置図・周辺概念図(イラスト、イメージマップ等)は、実際のものとは異なります
  • ※image photo記載のある写真は全てイメージです。
  • ※表示距離は、住宅地図をもとに現地(エントランス)からの最短距離を計測し、徒歩分数は80mを1分として算出(端数切り上げ)したものです。
  • 車分数は、一般道時速40km、高速道時速60km(一部の時速80km区間を除く)で計算しています。
  • ※徒歩、車分数は信号待ち、渋滞等を考慮しておりません。
  • ※記載の所要時間は、乗換え待ち時間を含めた最多の所要時間を記載しています。
  • 通勤時は7:00以降の乗車で9:00までに目的の駅に到着、( )内の日中平常時は10:00以降の乗車で15:00までに目的の駅に到着のものを対象としています。
  • 本数が同数の場合は遅い所要時間を明記しています。(各運行会社公表時刻表より2024年6月調べ)
  • ※色合い等は「モニター表示」の為、実際とは多少異なります。
  • 【提携ローンのご案内】
    ●提携金融機関/西日本シティ銀行(アドバンスプレミア)●申込資格/年収700万円以上(または夫婦合算年収900万円以上)※お申し込み時の年齢が満20歳以上、契約時年齢が満50歳以下で、完済時の年齢が満84歳以下の方。※お申込み時の年齢により取り組み可能年数が異なります。※健康状態に支障がなく、金融機関が指定する団体信用生命保険に加入できる方。※保証会社(西日本信用保証株式会社または九州総合信用株式会社)の保証が受けられる方。●申込金額/300万円以上3億円以内(1万円単位)※審査により融資金額が異なります。●返済期間/1年以上50年以内(1年単位)●返済方法/元利金均等毎月返済●融資手数料/ご融資金額×2.2%(保証会社手数料含む)●利率/変動金利0.875% ※お申込には審査があります。※物件価格とは別に諸費用がかかります。※融資条件は2026年1月6日時点のものです。※適用金利は融資実行時の金利となります。※掲載のお支払い例は概算です。端数処理等の関係上、実際の返済額に差異が生じる場合がございます。※銀行および保証会社所定の審査の結果、ご希望に添えない場合がございます。予めご了承ください。今後金融情勢により変化が生じる場合がございます。
ENTRY 来場予約 限定コンテンツ